21 Fotos und Anhänge ansehen
Wulff & Jenert GmbH
Schwalbenweg 17, 40764 Langenfeld

Langenfeld

Wohnzimmer

Wohnzimmer

Wohnzimmer

Wohnzimmer

Wohnzimmer

Wohnzimmer

Schlafzimmer

Schlafzimmer

Schlafzimmer

Küche

Küche

Küche

Flur

Flur

Badezimmer

Badezimmer

Badezimmer

Balkon

Balkon

Balkon

Barrierefreie und neuwertige Penthouse – Wohnung in der Langenfelder City zu verkaufen

Eckdaten

  • Art Penthouse
  • Lage 40764 Langenfeld (Rheinland)
  • Kaufpreis 479.000,00
  • Hausgeld 484,86
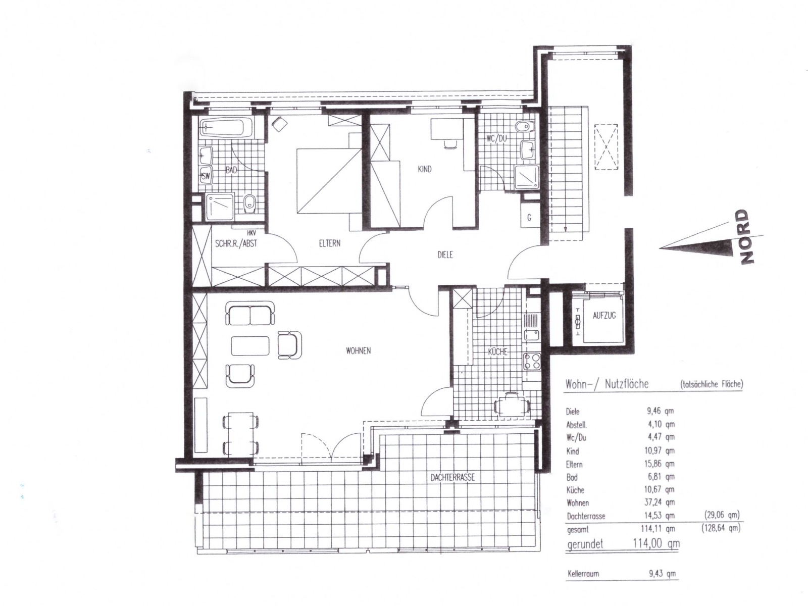
  • Wohnfläche ca. 114
  • Zimmer 3
  • Baujahr 2008
  • Nutzfläche ca. 9
  • Etagenzahl 4
  • Etage 4
  • Heizungsart Zentralheizung
  • Einbauküche ja
  • Stellplatztyp Tiefgarage
  • Stellplatzanzahl 1
  • Stellplatzkaufpreis 16.000,00
  • Bezugstermin 1.Quartal 2026
  • Bodenbelag Parkett, Fliesen
  • Ausstattung des Bades Badewanne, Dusche, Fenster
  • Zustand Neuwertig
  • Immobilien-ID 8044
  • Provision 3,27 % inkl. MwSt.

Immobilie

Das Wohnquartier – StadtPunkt – wurde im Jahr 2008 von dem renommierten Langenfelder Bauträger Paeschke GmbH in massiver und hochwertiger Bauweise errichtet.

Die vollkommen barrierefreie Wohnanlage im Herzen der Stadt Langenfeld erfüllt höchste Wohn – und Komfortansprüche. Das gesamte Quartier befindet sich in einem sehr gepflegten Zustand und wird sehr sorgfältig verwaltet.

Das Gebäude verfügt über ein mit Granit ausgelegtes Treppenhaus, einen Aufzug und einen direkten Zugang zur Tiefgarage. Die Sonnenbalkone und Dachterrassen befinden in südwestlicher Richtung.

Zu jeder Wohnung gehört ein Kellerraum, im Waschkeller kann die eigene Waschmaschine samt Trockner aufgestellt werden. Außerdem steht den Bewohnern ein Fahrradkeller zur Verfügung. Die moderne Gas-Zentralheizung generiert auch die Warmwasserversorgung.

Lage

Im Herzen der Stadt, zentraler kann man in Langenfeld kaum wohnen, die Fußgängerzone, die Stadtgalerie, das Rathaus und die öffentlichen Verkehrsanbindungen sind sofort nach wenigen Metern Fußweg zu erreichen.

Ausstattung

Der repräsentative Wohnbereich samt Küche ist mit sehr hohen XXL-Fensterflächen lichtdurchflutet und in dieser Form nur sehr selten zu finden. Die Deckenhöhe im Wohnbereich und in der Küche liegt bei über 3 Metern und vermittelt einen exklusiven Wohnstil.

Die gesamte Penthouse -Wohnung ist mit einer Fußbodenheizung ausgestattet. Die drei Zimmer sind mit einem hochwertigen Parkettboden ausgelegt. In der Diele befindet sich ein moderner Fliesenboden. Die Küche, das Haupt-Bad und das Gäste -Duschbad sind mit modernen und zeitlosen Fliesen ausgestattet.

Das Tageslicht – Haupt-Bad verfügt über eine bodenebene Duschkabine und eine Badewanne. Alle Sanitärobjekte sind in der Farbe Weiß gehalten, die gesamte Ausstattung ist sehr hochwertig.

Die Diele verfügt über einen großen Wandschrank. Neben dem Hauptbad, welches vom Schlafzimmer aus zugänglich ist, befindet sich ein Abstellraum mit einem Waschmaschinenanschluss, somit kann die Waschmaschine wahlweise in der Wohnung oder im Waschkeller aufgestellt werden. Die vorhandene Einbauküche ist im Kaufpreisangebot enthalten. Die Innentüren und Türzargen sind in der Farbe Weiß gehalten.

Die Fenster sind aus weißem Kunststoff und verfügen über eine moderne Wärmeschutzverglasung. An allen Fernern sind Außenrolladen vorhanden, diese sind im Wohnzimmer und in der Küche elektrisch zu betätigen.

Ein Lüftungssystem im Schlafzimmer sorgt für einen permanenten und idealen Luftaustausch.

Die sehr große Dach – Sonnenterrasse ist mit einer elektrische Marlise ausgestattet und bietet eine exklusive und angenehme Privatsphäre.

Keller Aufzug Seniorengerecht Balkon vorhanden Einbauküche Rollladen vorhanden

Sonstiges

Der PKW -Stellplatz in der Tiefgarage kann für 16.000 € erworben werden.

Das monatliche Hausgeld für die Wohnung beträgt aktuell 462,07 € inklusive der Heizkosten und der Rücklagenzuführung.

Das monatliche Hausgeld für den PKW – Stellplatz beträgt aktuell 22,79 € inklusive der Rücklagenzuführung.

Die jährliche Grundsteuer beträgt aktuell 350,91 €.

Ein Bezug kann zeitnah ermöglicht werden.

Die Käuferprovision beträgt 3,27 % inklusive der gesetzlichen MwSt. vom Kaufpreis und ist verdient und fällig mit dem Abschluss des notariellen Kauvertrages.

Wir haben mit dem Verkäufer einen provisionspflichtigen Maklervertrag in gleicher Höhe abgeschlossen.

Bitte senden Sie uns zunächst die Kontaktanfrage über Immobilienscout 24 oder über unsere Internetseite www.wulff-jenert.de.

Alle hier veröffentlichten Informationen zum Angebot beruhen auf den Angaben des Verkäufers. Für die Richtigkeit, Vollständigkeit und Aktualität kann keine Haftung übernommen werden.

Energieausweisangaben

A+
A
B
C
D
E
F
G
H
  • Enerigeausweistyp Verbrauchsausweis
  • Energiekennwert 77 KWh(m²*a)
  • Energieeffizienzklasse C
  • Energie mit Warmwasser ja
  • Energieausweis erstellt am 14.11.2018
  • Energieausweis gültig bis 14.11.2028
  • Heizungsart Zentralheizung
  • Befeuerung / Energieträger Gas

Grundrisse

Wie können wir Ihnen behilflich sein?

Herzlichen Dank für Ihre Anfrage.

Wir werden diese so schnell wie möglich bearbeiten.

Wie können wir Ihnen behilflich sein?
* Pflichtfeld